Oferta
DODATKOWE INFORMACJE
Sprzedaż – Dom w zabudowie bliźniaczej | Gdańsk Klukowo
OSTATNIE 3 DOMY !!!
Twoja oaza spokoju. Idealne miejsce dla osób ceniących komfort życia, nowoczesne technologie oraz niskie koszty utrzymania domu.
Na Osiedlu korzystamy z nowoczesnych rozwiązań, takich jak pompy ciepła oraz instalacje fotowoltaiczne, które znacząco obniżają koszty eksploatacji i jednocześnie są przyjazne dla środowiska.
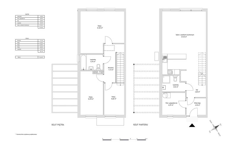
Każdy dom został zaprojektowany z dbałością o najmniejsze detale i oferuje 112,64 m2 powierzchni użytkowej.
Parter
-
przestronny salon z aneksem kuchennym
-
komfortowa łazienka
-
funkcjonalne pomieszczenie gospodarcze
Piętro
-
3 przytulne sypialnie
-
druga łazienka
Takie rozplanowanie przestrzeni zapewnia komfort, prywatność oraz wygodę codziennego życia.
Dodatkowa przestrzeń – poddasze
Dużym atutem domu jest poddasze o powierzchni ok. 60 m2, które nie jest użytkowe, jednak istnieje możliwość jego adaptacji według własnych potrzeb.
Może ono zostać przeznaczone np. na:
-
dodatkowy pokój
-
biuro do pracy
-
strefę relaksu
-
pokój hobby
To świetna okazja, aby stworzyć przestrzeń idealnie dopasowaną do swojego stylu życia.
Atuty inwestycji
-
pompa ciepła
-
instalacja fotowoltaiczna
-
światłowód
-
prywatne ogrody
-
miejsca parkingowe
-
duże przeszklenia zapewniające doskonałe doświetlenie
-
kameralne, zamknięte osiedle
-
malownicza, spokojna okolica
Lokalizacja
Osiedle znajduje się w Gdańsku Klukowie, w spokojnej części miasta, z szybkim dostępem do głównych tras komunikacyjnych.
Odległości:
-
Lotnisko – 2,5 km
-
Park Handlowy Matarnia – 5 km
-
Wrzeszcz – 10 km
-
Centrum Gdańska – 15 km
- Centrum Sopot - 14 km
To idealne połączenie spokoju podmiejskiej lokalizacji z wygodnym dostępem do miasta.
Jeśli szukasz nowoczesnego domu w spokojnej okolicy, z możliwością dodatkowej adaptacji przestrzeni – to idealne miejsce dla Ciebie.
