Oferta
DODATKOWE INFORMACJE
2-POKOJOWE MIESZKANIE Z OGRÓDKIEM | GDAŃSK ŁOSTOWICE |
! ATRAKCYJNA CENA !
KUPUJĄCY NIE PLACI PROWIZJI !
POMAGAMY W UZYSKANIU ZEZWOLENIA OD MINISTERSTWA DLA CUDZOZIEMCÓW
MIESZKANIE:
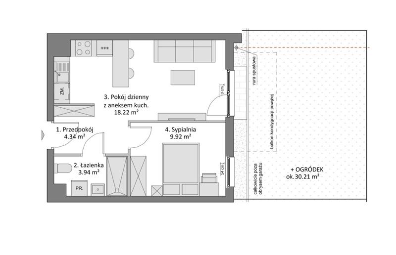
nowoczesne, 2-pokojowe mieszkanie z ogródkiem o powierzchni 36,42 m2, położone na parterze w wyjątkowej inwestycji Osiedle Pastelowe – miejscu, które łączy komfort miejskiego życia z ciszą i bliskością natury.
Lokal w stanie deweloperskim, co daje możliwość aranżacji wnętrza według własnych potrzeb i gustu.
UKŁAD:
salon z aneksem kuch. - 18,22 m2
sypialnia - 9,92 m2
łazienka - 3,94 m2
przedpokój - 4,34 m2
ogródek - 30 m2
Parking ogólnodostępny.
(Dodatkowo istnieje możliwość dokupienia miejsca parkingowego.)
ATUTY:
Osiedle Pastelowe to kameralny projekt zaprojektowany z myślą o osobach ceniących spokój, bezpieczeństwo i niezależność, a jednocześnie szybki dostęp do centrum Gdańska. Inwestycja wyróżnia się:
*dużymi odległościami między budynkami (ponad 30 m),
*nowoczesną, estetyczną architekturą,
*rozwiązaniami ekologicznymi, obniżającymi koszty eksploatacji.
*na dachach budynków zamontowano panele fotowoltaiczne zasilające części wspólne, a klatki schodowe wyposażono w energooszczędne oświetlenie LED.
*na osiedlu zamontowano instalację światłowodową pozwalającą na zamontowanie ultraszybkiego Internetu
*tereny zielone i place zabaw dla dzieci w otoczeniu różnorodnej roślinności oraz drzew, które tworzą przyjazną przestrzeń do wypoczynku i rekreacji dla mieszkańców.
*w trosce o bezpieczeństwo przyszłych mieszkańców osiedle będzie wyposażone w zewnętrzny monitoring i wideodomofony, a w lokalach mieszkalnych zamontowane zostaną drzwi antywłamaniowe
LOKALIZACJA:
GDAŃSK ŁOSTOWICE - Spokojna, zielona i dynamicznie rozwijająca się dzielnica. Idealna do codziennego życia i aktywnego wypoczynku:
tereny spacerowe, joggingowe i rekreacyjne,
*szybki i wygodny dojazd do centrum Gdańska oraz innych dzielnic,
*doskonała alternatywa dla zatłoczonych centralnych lokalizacji.
TERMIN ODDANIA:
Zakończenie inwestycji: listopad 2026 roku.
CENA: 445 000 zł
KONTAKT: +48 884 956 651 Tatiana.
Serdecznie zapraszamy do kontaktu.
Nie przegap okazji!
