Oferta
DODATKOWE INFORMACJE
2-POKOJOWE MIESZKANIE W NOWOCZESNYM BUDYNKU WIELORODZINNYM
W SERCU REDY PRZY UI. OBWODOWEJ.
Kupujący nie płaci prowizji!
Kameralna inwestycja, nowoczesna architektura w stylu śródziemnomorskim, spokojna lokalizacja przy ustronnej ulicy oraz piękna zieleń wokół sprawiają, że to miejsce, w którym łatwo poczuć się jak w domu. To zamknięte osiedle obejmujące sześć budynków jednorodzinnych dwulokalowych oraz budynek wielomieszkaniowy.
MIESZKANIE
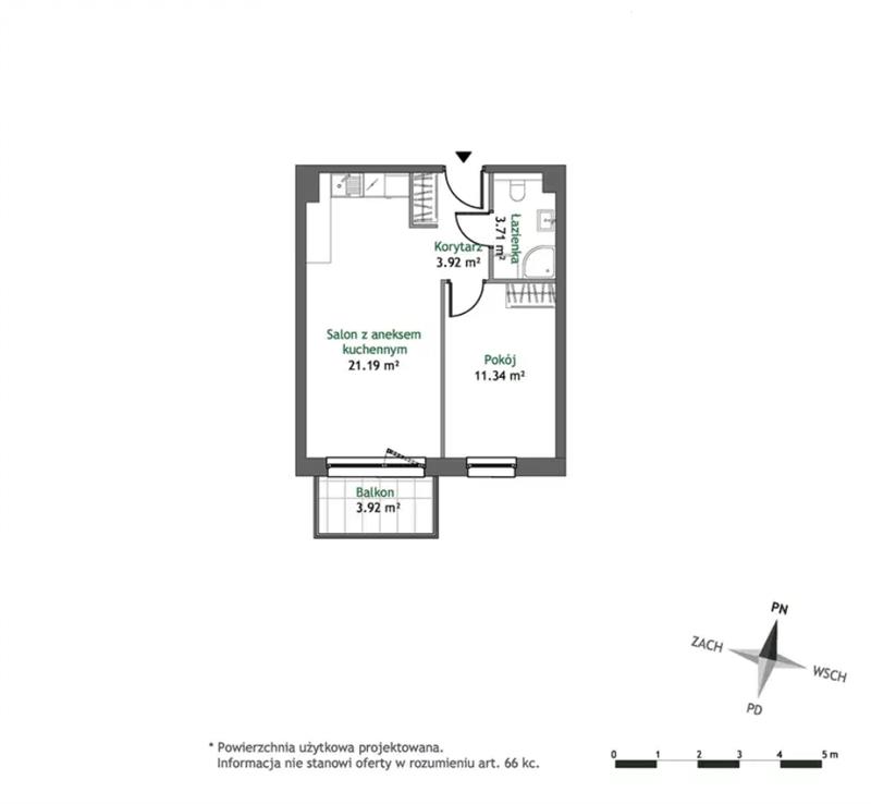
Mieszkanie o powierzchni 40,16 m2, położone na 1 piętrze, z południową ekspozycją zapewniającą jasne i słoneczne wnętrza.
UKŁAD
- korytarz – 3,92 m2,
- łazienka – 3,71 m2,
- pokój – 11,34 m2,
- salon z aneksem kuchennym – 21,19 m2,
- balkon o pow. 3,92 m2.
ATUTY
- nowoczesny budynek w stylu śródziemnomorskim,
- winda od hali garażowej do 3. piętra,
- ogrzewanie gazowe miejskie,
- możliwość zakupu miejsca postojowego (zewnętrznego lub w hali garażowej),
- możliwość zakupu komórki lokatorskiej (różne metraże),
- rowerownia dla mieszkańców,
- zielone, kameralne otoczenie osiedla,
- doskonała lokalizacja.
Sklepy - 200 m
Przychodnia NFZ - 550 m
Aquapark Reda - 650 m
Szkoła - 700 m
Przystanek SKM REDA - 950 m
CENA
420 000 zł
miejsce w hali garażowej 37 000,00 zł
komórka lokatorska 3 500,00 zł/m2 (powierzchnie od 2,77 m2 do 6,72 m2)
Osiedle zlokalizowane jest przy cichej, ustronnej ulicy w Redzie. To idealne miejsce dla osób, które cenią spokój i prywatność, a jednocześnie chcą mieć szybki dostęp do Trójmiasta i nadmorskich atrakcji.
Termin realizacji: IV kwartał 2026 r.
KONTAKT
+48 884 956 651 Tatiana
Skontaktuj się i wybierz mieszkanie dopasowane do Twoich potrzeb!
